GIANT SHIPPING CONTAINER HOME
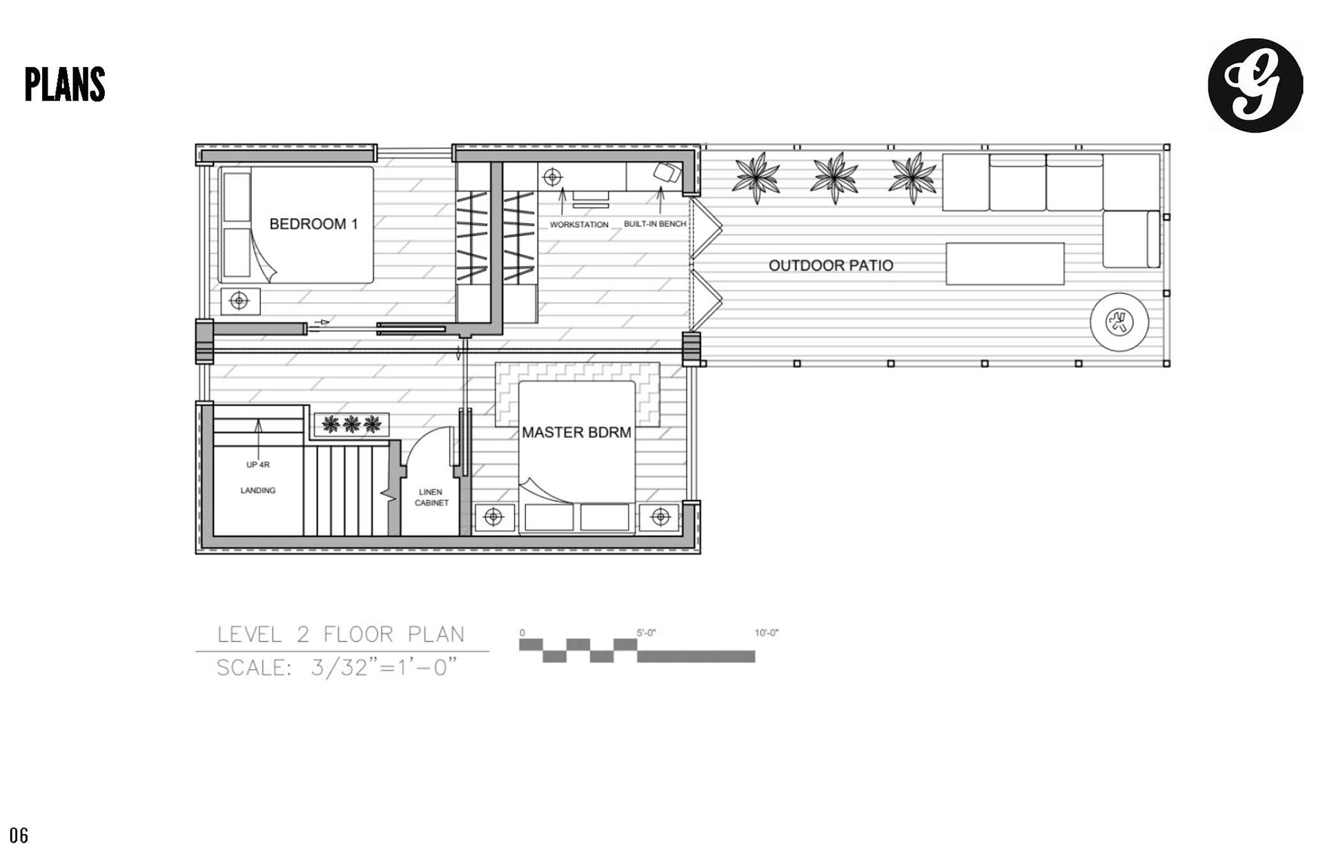
Shipping Container Affordable Housing Project located 150 Queens Wharf Road designed for GIANT Container Homes. Floor plans and section created on AutoCAD, 3D views created on Sketchup and rendered on Enscape
Shipping Container Affordable Housing Project located 150 Queens Wharf Road designed for GIANT Container Homes. Floor plans and section created on AutoCAD, 3D views created on Sketchup and rendered on Enscape