Work
ABOUT ME
Contact
Work
ABOUT ME
Contact
Cassandra Brown

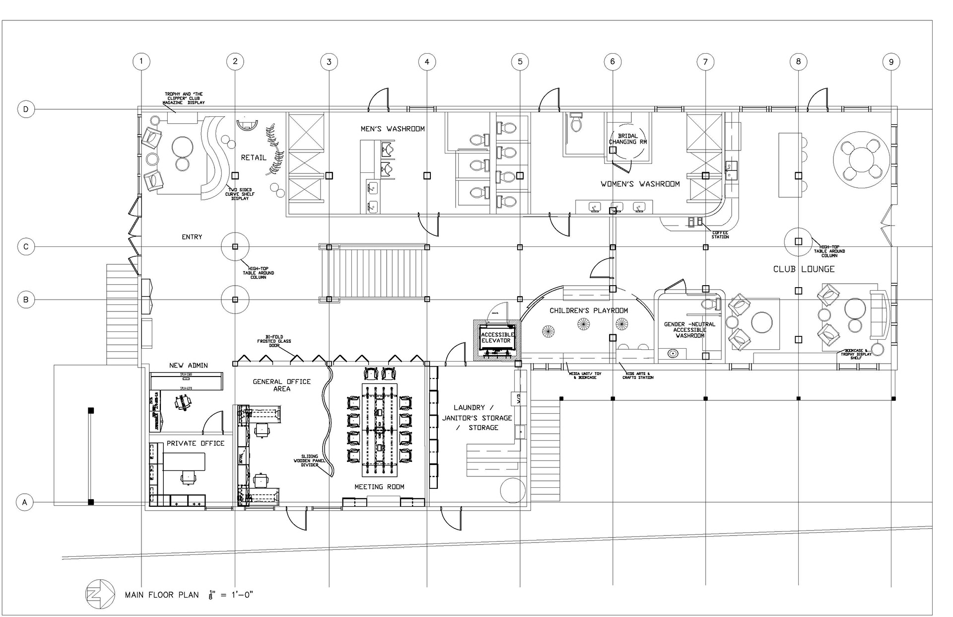
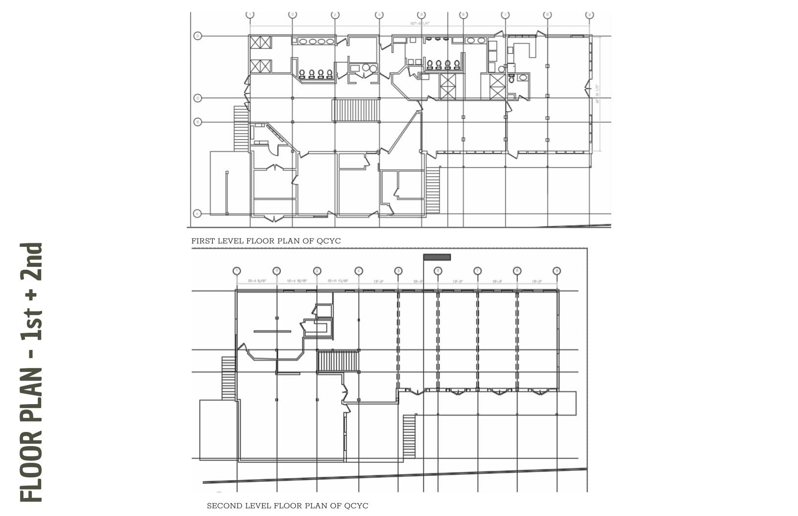
Yacht Club Design

Proposed Hospitality design project for Queen City Yacht Club located on Algonquin Island in the Toronto Islands. Plans created on AutoCAD and rendered on Photoshop

You may also like

THE RESIDENCES OF THE WELL CLASSIC 2
2024
THE RESIDENCES OF THE WELL
2024
COTTAGE DESIGN
2019
3D FREELANCE WORK
2021
LOFT DESIGN
2020
GIANT SHIPPING CONTAINER HOME
2021
RESIDENTIAL HOUSE PROJECT
2018
NXT Bank Project
2020
AQUALUNA AT BAYSIDE TORONTO
2026
Auberge on the Park
2025
↑Back to Top
Powered by Adobe Portfolio