Work
ABOUT ME
Contact
Work
ABOUT ME
Contact
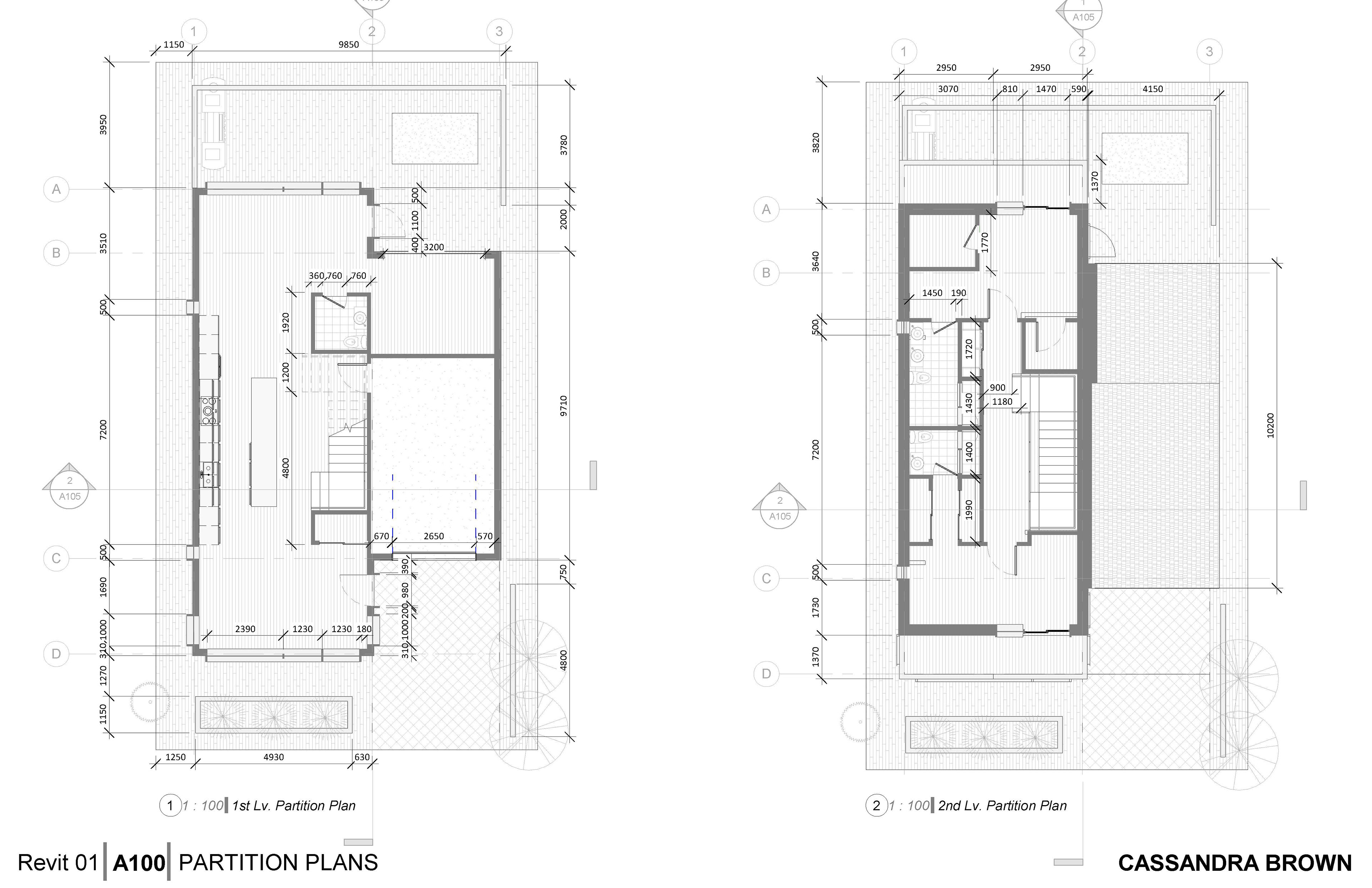
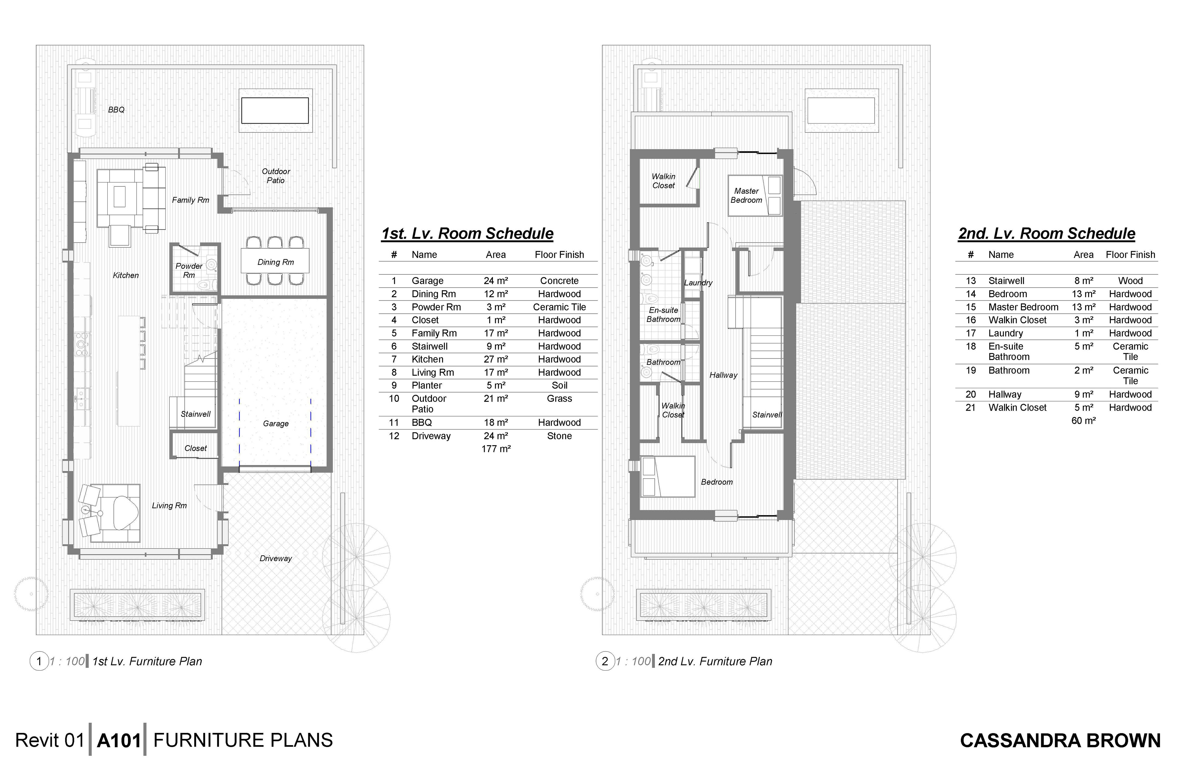
Cassandra Brown

RESIDENTIAL HOUSE PROJECT

Construction drawings completed on Revit for a residential house design

You may also like

NXT Bank Project
2020
THE RESIDENCES OF THE WELL CLASSIC 2
2024
ROYAL BAYVIEW THORNHILL RESIDENCES
2026
IQ Business Media
2020
GIANT SHIPPING CONTAINER HOME
2021
RETAIL DESIGN
2019
THE RESIDENCES OF THE WELL
2024
3D FREELANCE WORK
2021
AQUALUNA AT BAYSIDE TORONTO
2026
Auberge on the Park
2025
↑Back to Top
Powered by Adobe Portfolio