Work
ABOUT ME
Contact
Work
ABOUT ME
Contact
Cassandra Brown

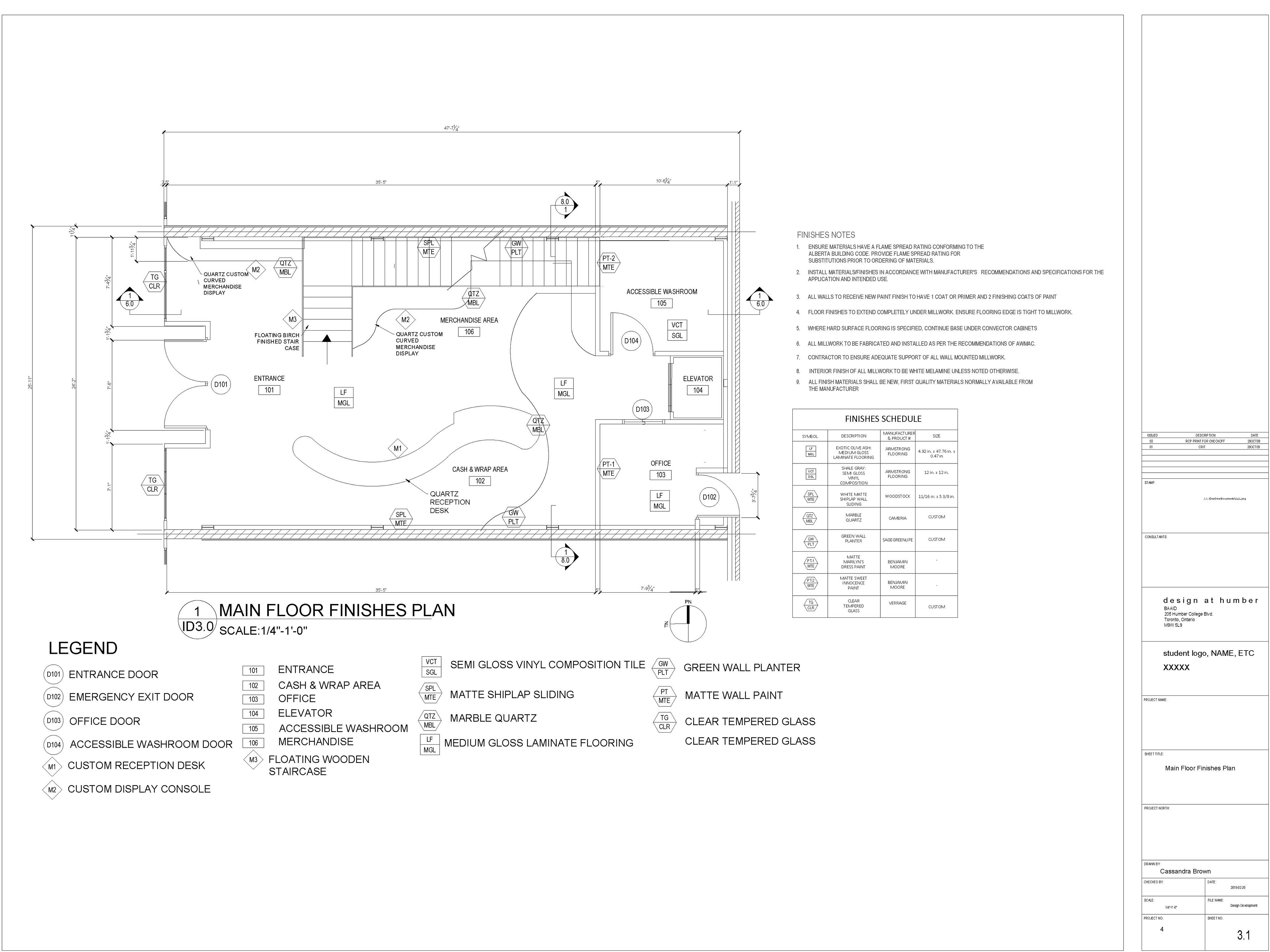
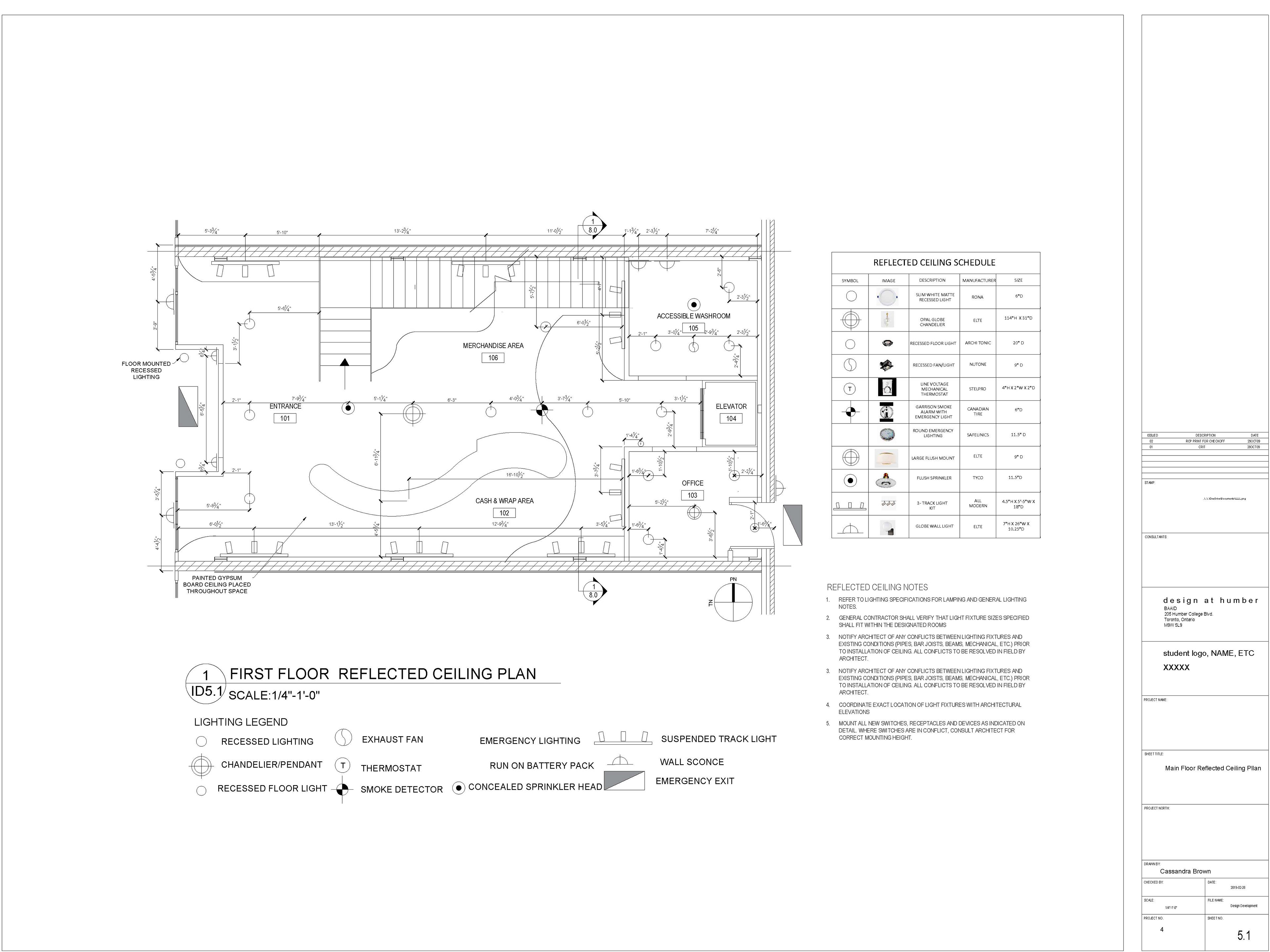
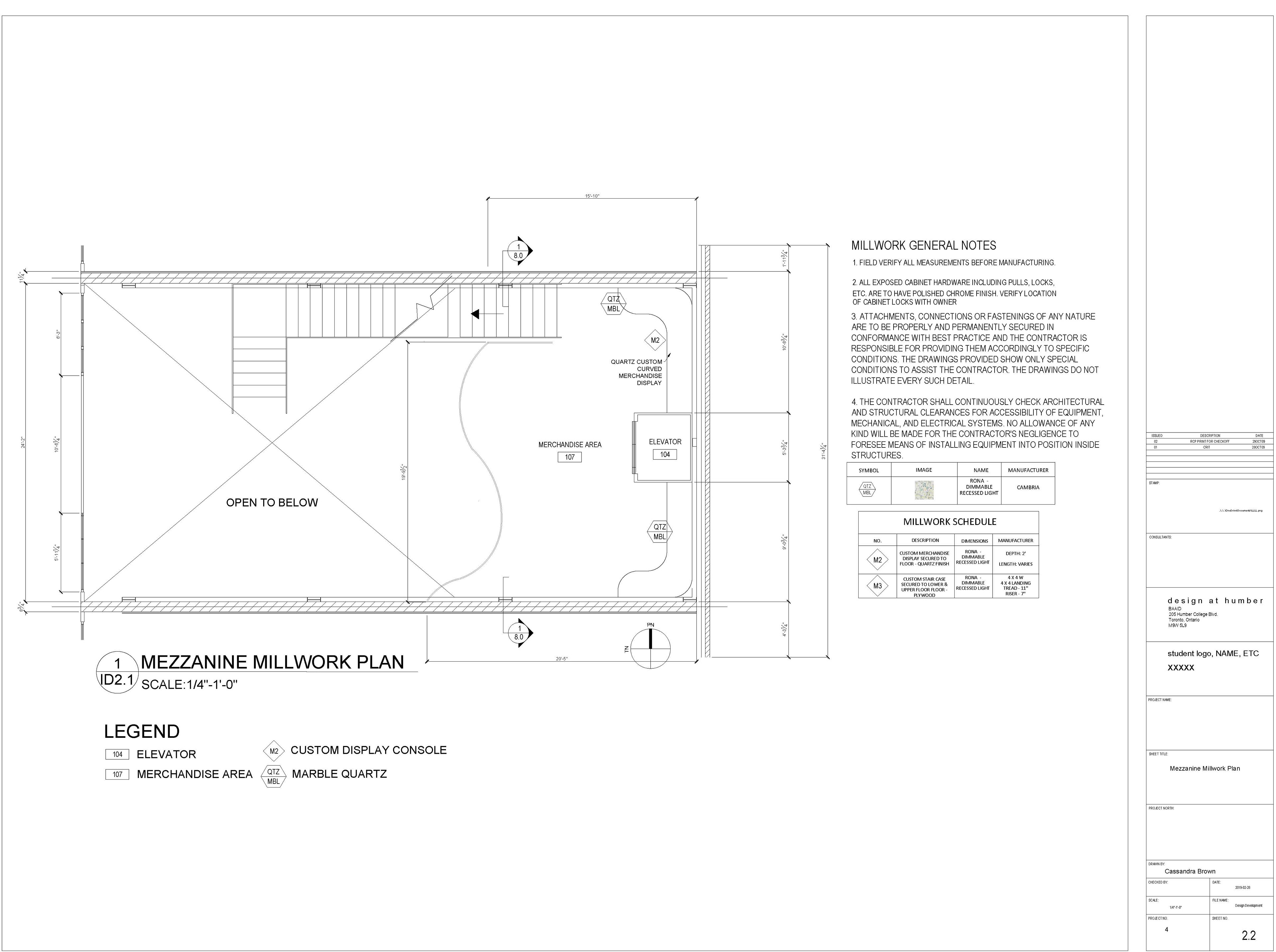
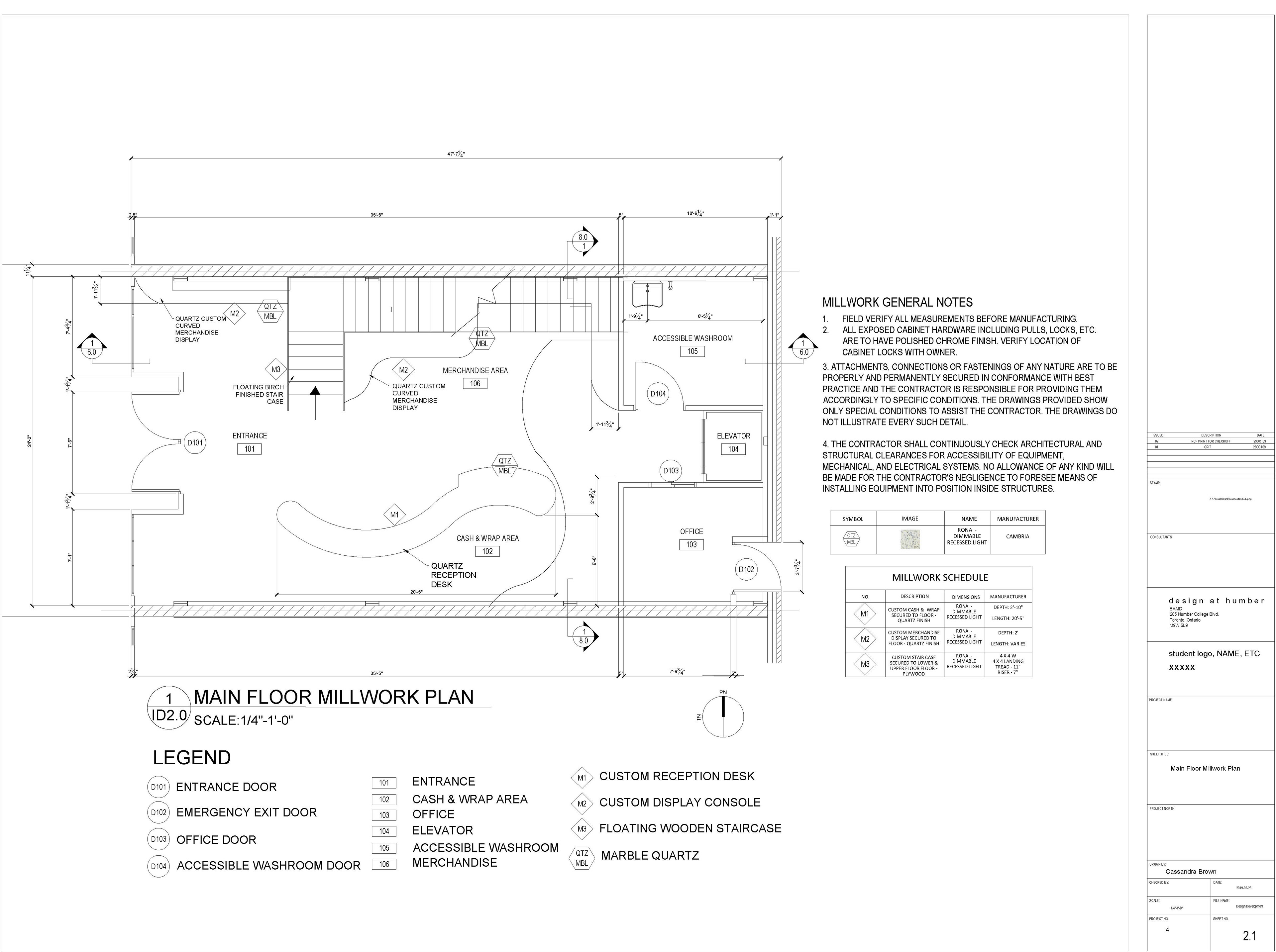
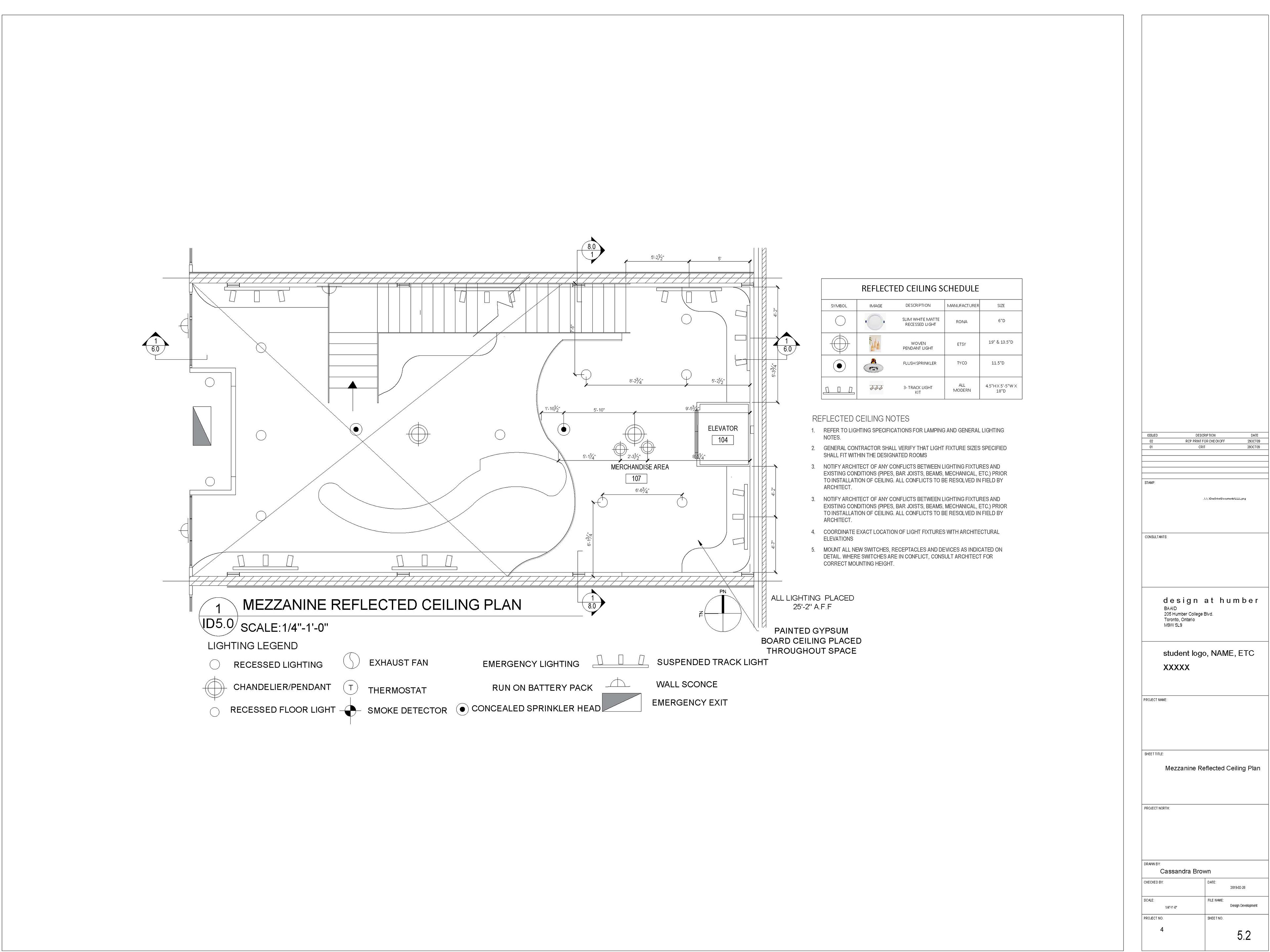
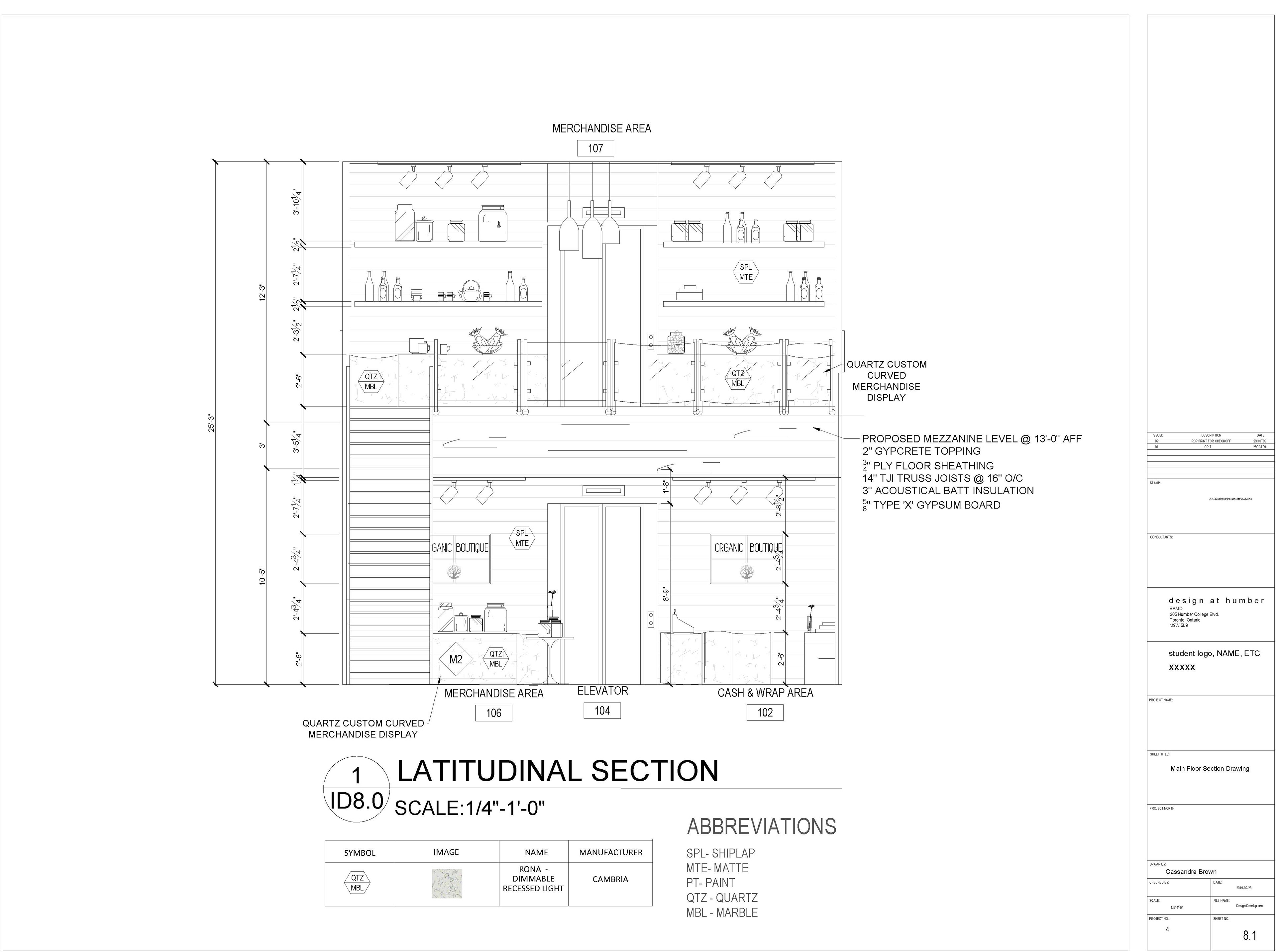
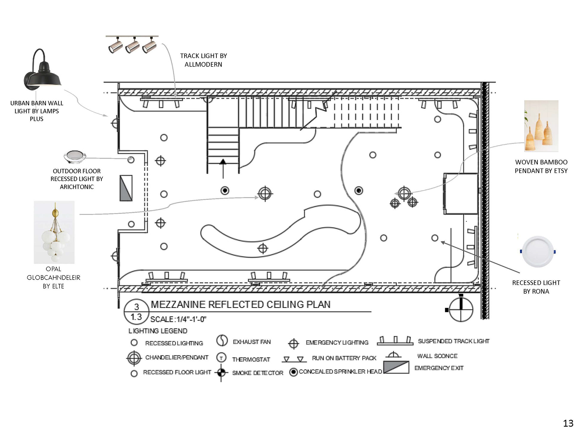
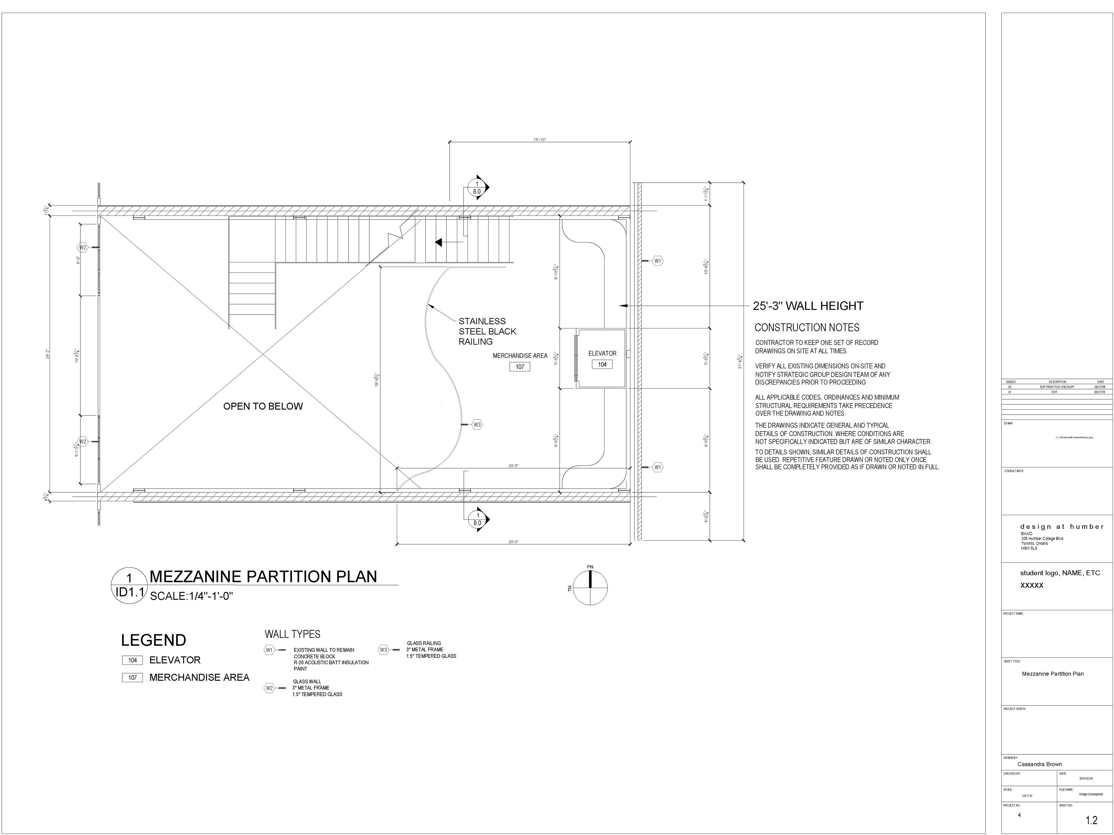
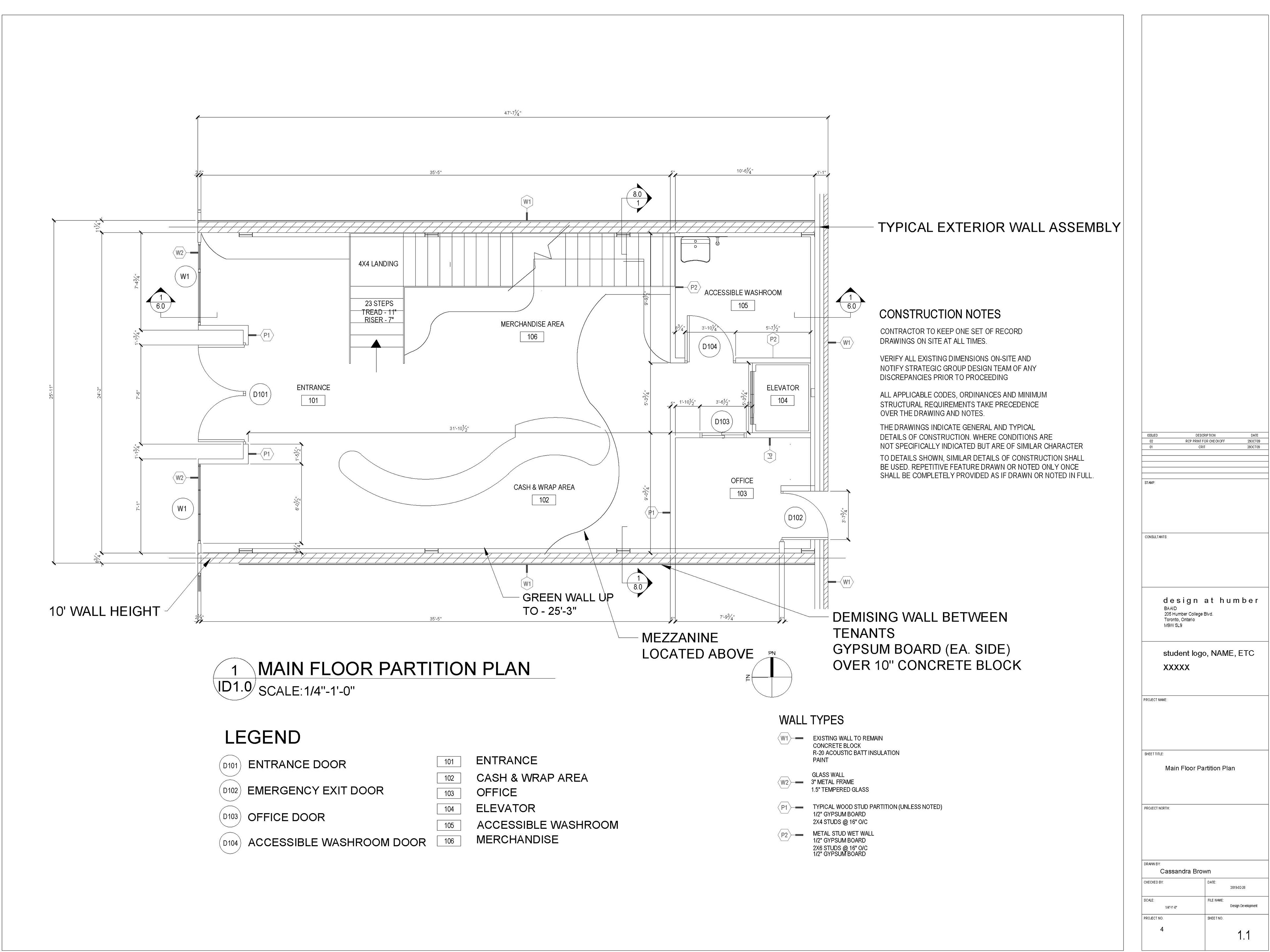
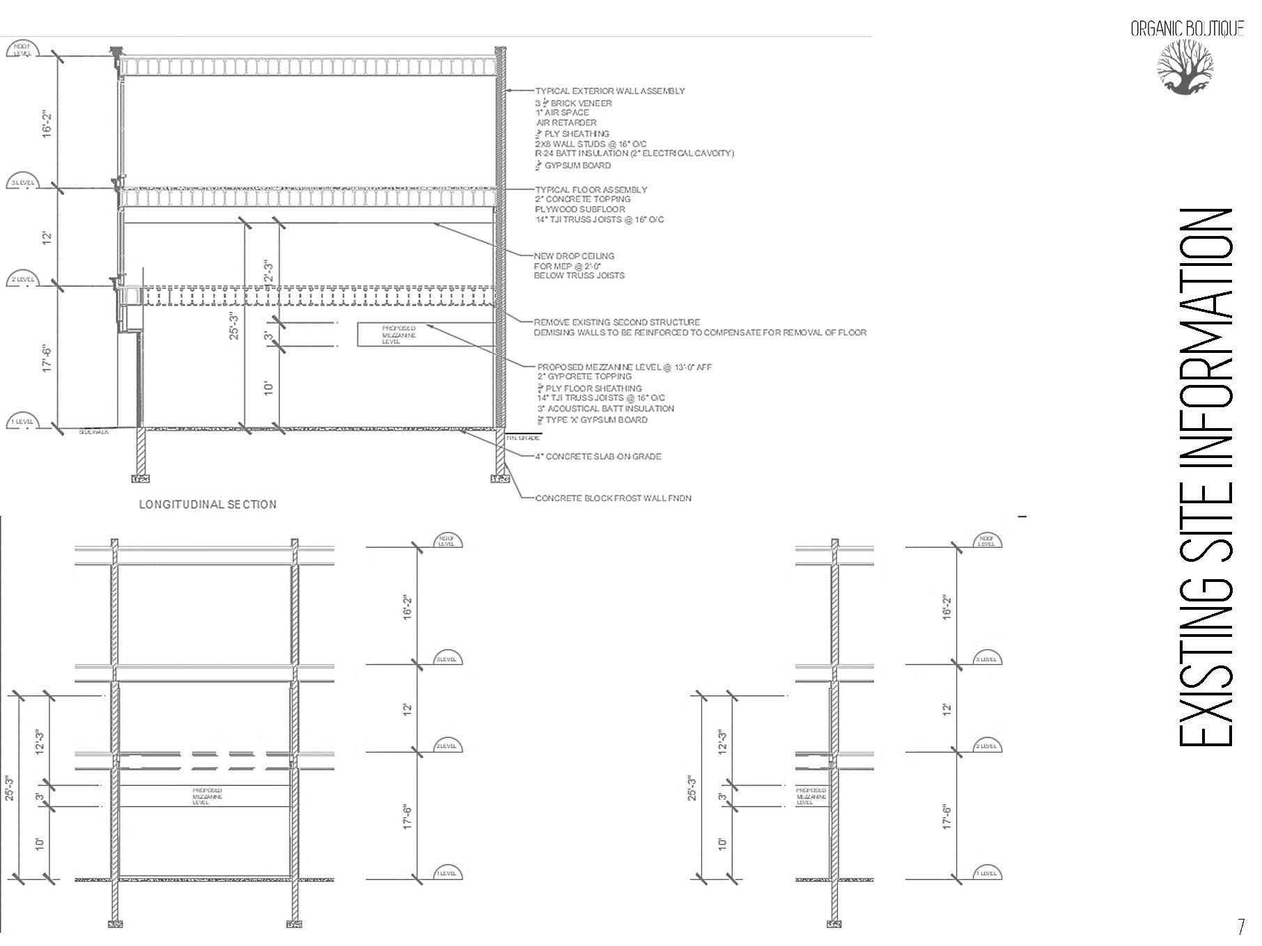
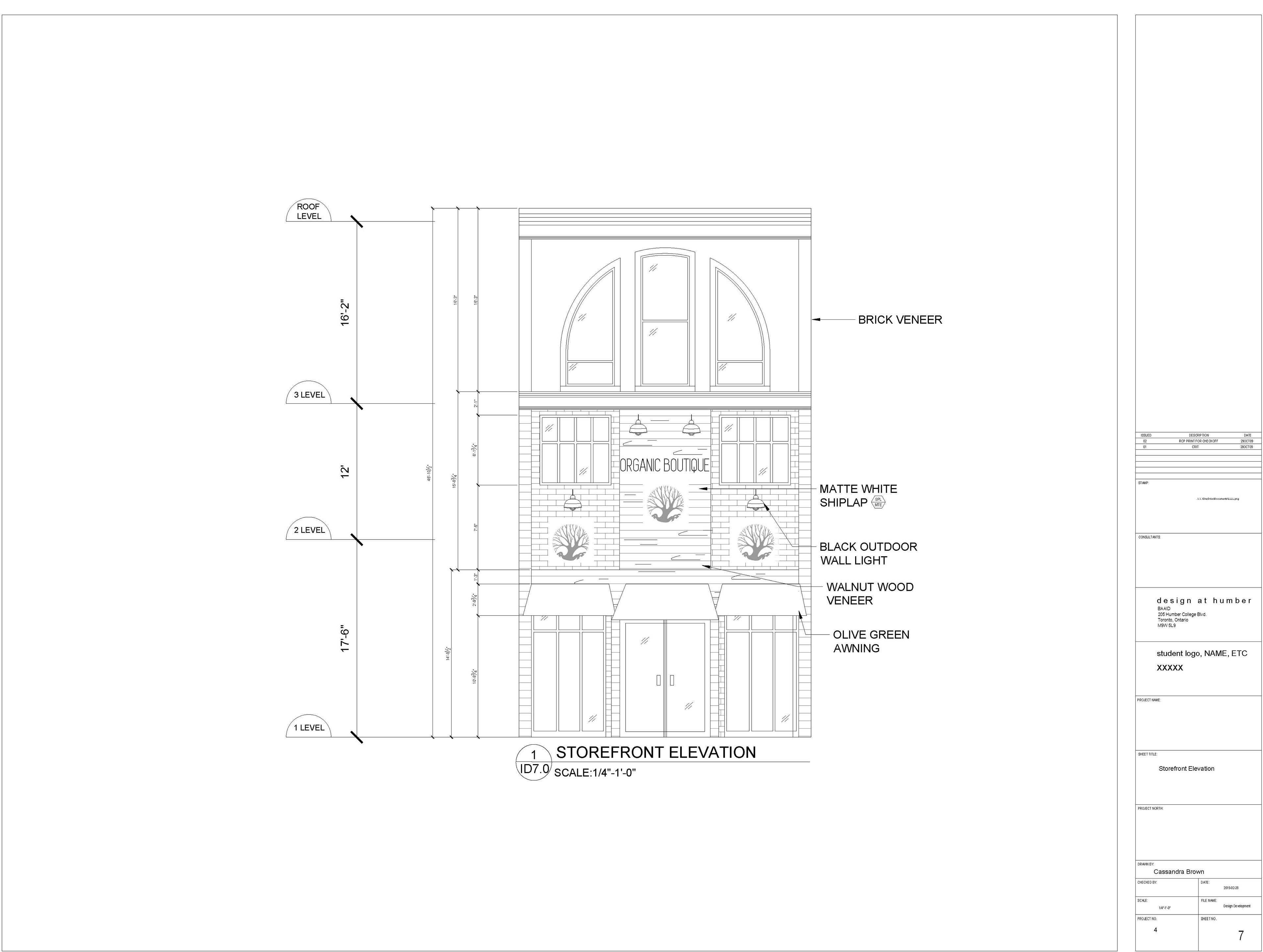
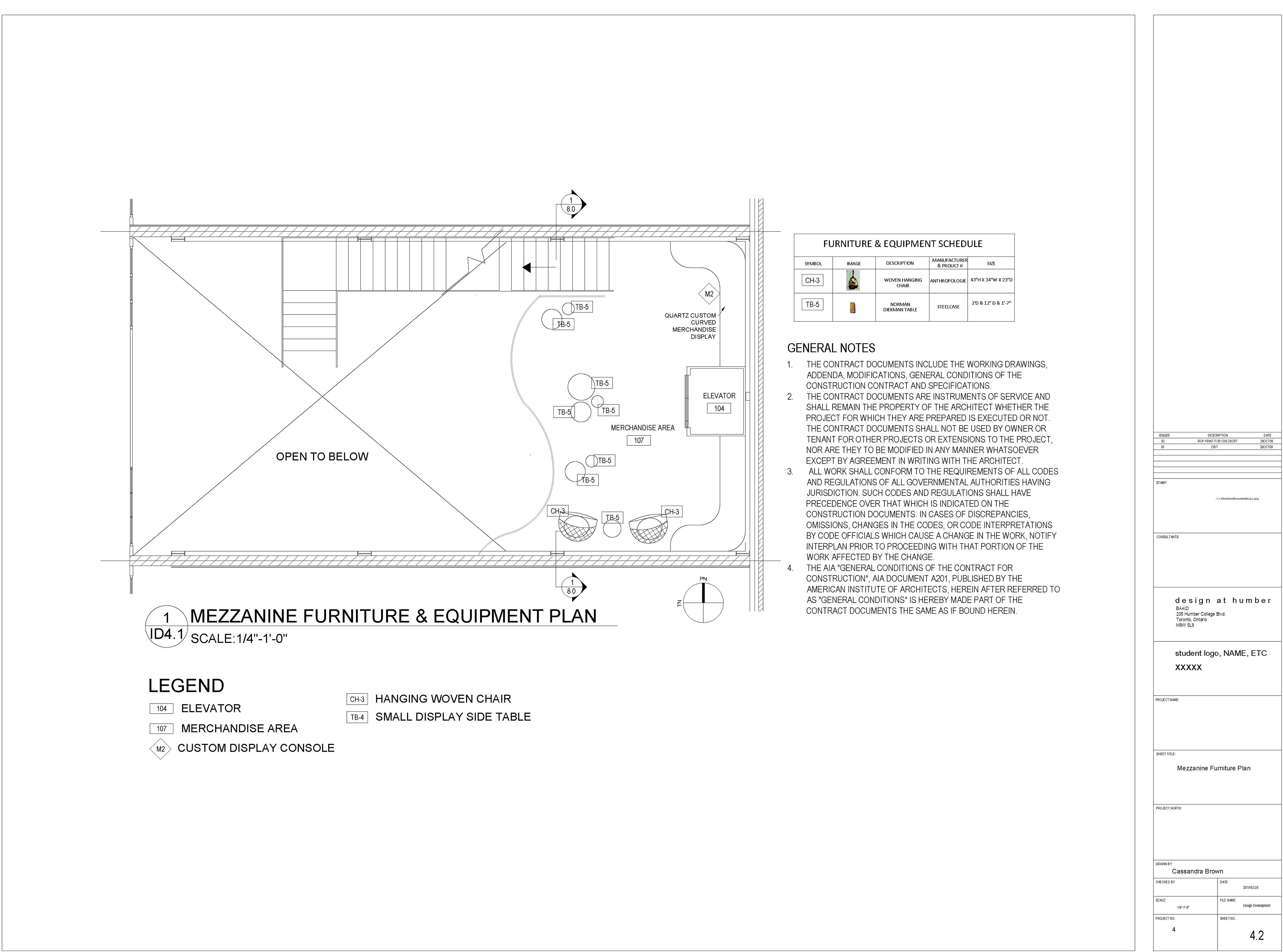
RETAIL DESIGN

Proposed retail design for Queen Street retail building. Currently known as Abrahams Mirror Plus, an Antique store. Plans created on AutoCAD and hand rendered

You may also like

ROYAL BAYVIEW THORNHILL RESIDENCES
2026
THE RESIDENCES OF THE WELL CLASSIC 2
2024
COTTAGE DESIGN
2019
IQ Business Media
2020
LOFT DESIGN
2020
Yacht Club Design
2019
AQUALUNA AT BAYSIDE TORONTO
2026
GIANT SHIPPING CONTAINER HOME
2021
THESIS PROJECT
2021
AUTOCAD PROJECTS
2020
↑Back to Top
Powered by Adobe Portfolio